江河为耐磨管道项目提供哪些技术支持?
管线图主要包括“三部分”内容:
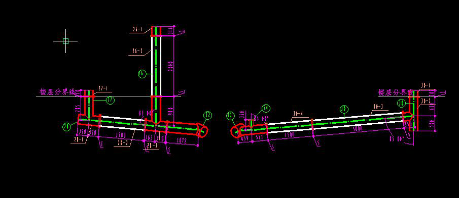
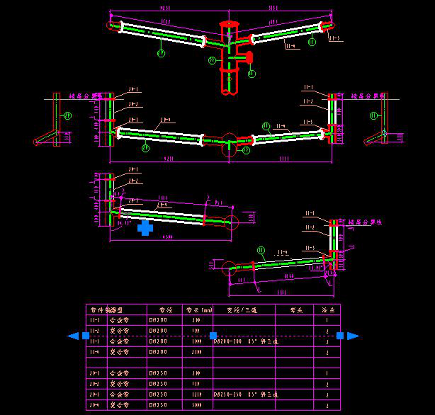
1、图形:表明所施工的管段由哪些组件组成以及它们在三维空间的位置;
2、工程数据:包括管道设计参数、各种尺寸、标高和管道标志、管道编号、安装检验的主要要求等标注说明;材料清单中开列组成该单线图的管段所有组件的型号、规格、数量和使用的标准规范。
3、图例:指北针和标题框等相关内容。
⑴标题框:主要明确管道安装工程的名称、单线图号、管线标号以及绘制、审核等人员签字及相应的日期;
⑵指北针:管道基本走向的方向指示;管道主要参数:主要有设计压力、设计温度、介质名称、管道的类级别、设计规范、管道安装施工的验收规范;(3)图例:管道主要涉及的元件以及不同敷设方式下管子的绘制符号表示的说明;
我们江苏江河机械机械有限公司拥有完善的技术团队,我们能做到的就是:针对客户提供给我们的整套管线图,从三视图以三个角度来进行详细的分解,得到正确的长度、角度、弯曲半径;对每条管线进行尺寸的标注,分解成详细的生产图。具体可以形成轴侧图方法绘制的管道单线图,准确表明每段管子的规格、长度、各段标高、焊口的数量及大致位置等。对于管道材料的规格和牌号以及相应的材料标准、对于管道上涉及到较多的元件情况下,也可以考虑增加管道元件基本信息的材料表的方式来表达。
碰到有问题的地方及时与客户进行沟通,给出正确的可行性建议,耐心等待客户给出的明确解决方案。
【以上文章来源于江苏江河专注锅炉燃烧器耐磨耐热配件的公司(www.jhjx66.com),转载请注明出处哟!】
下一篇:你的稀土耐磨管是否是这样的?
上一篇:网络交易的背后我们在做什么?















